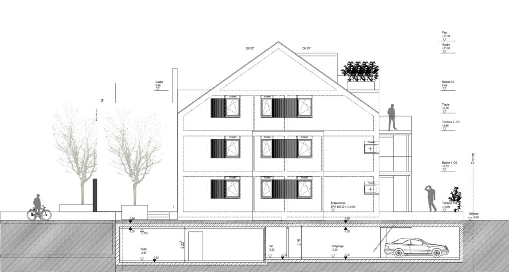
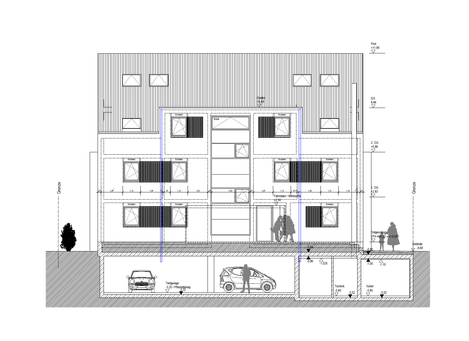
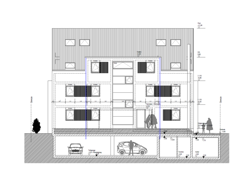
Haus Eisgässle Komplettausschreibung MFH mit Tiefgarage für ruoff architekten, Böblingen Böblingen 09/2009 bis 12/2009 Aktuelle Referenzen Revitalisierung ehem. Lorenzspital in MeißenTeilausschreibung Mitwirkung Vergabe (LPH 6-7), für RiegerArchitektur, Partnerschaft freier Architekten mbB Rieger Lehner Steinborn mehr Details Bauausschreibung & Kalkulation, Referenzen Feuerwache ColmnitzProjektsteuerung; AG Gemeinde Klingenberg, Schulstraße 1, 01774 Klingenberg mehr Details Projektmanagement, Referenzen Einfamilienhaus in Dresden OmsewitzKomplettausschreibung und Bauleitung (LPH 6-8); für AB Dr. Knut Hauswald mehr Details Bauausschreibung & Kalkulation, Bauleitung & Bauüberwachung, Referenzen Erweiterung & Umbau Kirchengebäude St. Josef Stift DresdenBauleitung LPH 8 für AB Matthias Klut mehr Details Bauausschreibung & Kalkulation, Bauleitung & Bauüberwachung, Referenzen Instandsetzung Gänge LASUV MeißenAusschreibung / Bauleitung LPH 6-8 für AB Dr. Knut Hauswald mehr Details Bauausschreibung & Kalkulation, Bauleitung & Bauüberwachung, Referenzen Partielle Sanierung & Umnutzung Kulturrathaus DresdenKomplettausschreibung / Bauleitung für AB Dr. Knut Hauswald mehr Details Bauausschreibung & Kalkulation, Bauleitung & Bauüberwachung, Referenzen Komplettausschreibungen für Architekturbüro mehnert + georgiKita Zwickau, MFH Radebeul, EFH Sebnitz mehr Details Bauausschreibung & Kalkulation, Referenzen Sanierung BSZ für Wirtschaft „Franz Ludwig Gehe“Teilausschreibung / Bauleitung; C&E Consulting und Engineering GmbH, Jagdschänkenstr. 52, 09117 Chemnitz LPH 9 seit 03/2020 mehr Details Bauausschreibung & Kalkulation, Bauleitung & Bauüberwachung, Referenzen Umbau Villa Poisentalstraße in FreitalBauabschnitt II, Fassade + Dach; Komplettausschreibung / Bauleitung; ARGE mit AB 2+2 Architekten mehr Details Bauausschreibung & Kalkulation, Bauleitung & Bauüberwachung, Referenzen Anbau Fluoranlage an Produktionshalle Firma BinderBauüberwachung; für ruoff architekten, Böblingen mehr Details Bauleitung & Bauüberwachung, Referenzen
Revitalisierung ehem. Lorenzspital in MeißenTeilausschreibung Mitwirkung Vergabe (LPH 6-7), für RiegerArchitektur, Partnerschaft freier Architekten mbB Rieger Lehner Steinborn mehr Details Bauausschreibung & Kalkulation, Referenzen
Feuerwache ColmnitzProjektsteuerung; AG Gemeinde Klingenberg, Schulstraße 1, 01774 Klingenberg mehr Details Projektmanagement, Referenzen
Einfamilienhaus in Dresden OmsewitzKomplettausschreibung und Bauleitung (LPH 6-8); für AB Dr. Knut Hauswald mehr Details Bauausschreibung & Kalkulation, Bauleitung & Bauüberwachung, Referenzen
Erweiterung & Umbau Kirchengebäude St. Josef Stift DresdenBauleitung LPH 8 für AB Matthias Klut mehr Details Bauausschreibung & Kalkulation, Bauleitung & Bauüberwachung, Referenzen
Instandsetzung Gänge LASUV MeißenAusschreibung / Bauleitung LPH 6-8 für AB Dr. Knut Hauswald mehr Details Bauausschreibung & Kalkulation, Bauleitung & Bauüberwachung, Referenzen
Partielle Sanierung & Umnutzung Kulturrathaus DresdenKomplettausschreibung / Bauleitung für AB Dr. Knut Hauswald mehr Details Bauausschreibung & Kalkulation, Bauleitung & Bauüberwachung, Referenzen
Komplettausschreibungen für Architekturbüro mehnert + georgiKita Zwickau, MFH Radebeul, EFH Sebnitz mehr Details Bauausschreibung & Kalkulation, Referenzen
Sanierung BSZ für Wirtschaft „Franz Ludwig Gehe“Teilausschreibung / Bauleitung; C&E Consulting und Engineering GmbH, Jagdschänkenstr. 52, 09117 Chemnitz LPH 9 seit 03/2020 mehr Details Bauausschreibung & Kalkulation, Bauleitung & Bauüberwachung, Referenzen
Umbau Villa Poisentalstraße in FreitalBauabschnitt II, Fassade + Dach; Komplettausschreibung / Bauleitung; ARGE mit AB 2+2 Architekten mehr Details Bauausschreibung & Kalkulation, Bauleitung & Bauüberwachung, Referenzen
Anbau Fluoranlage an Produktionshalle Firma BinderBauüberwachung; für ruoff architekten, Böblingen mehr Details Bauleitung & Bauüberwachung, Referenzen