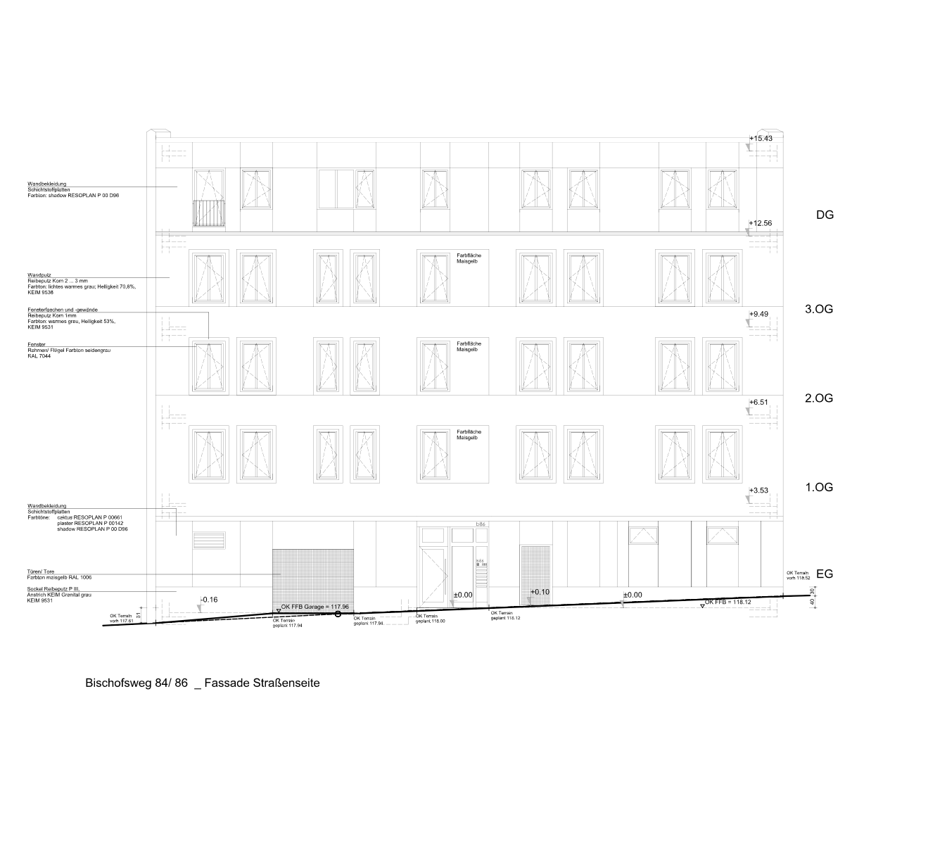
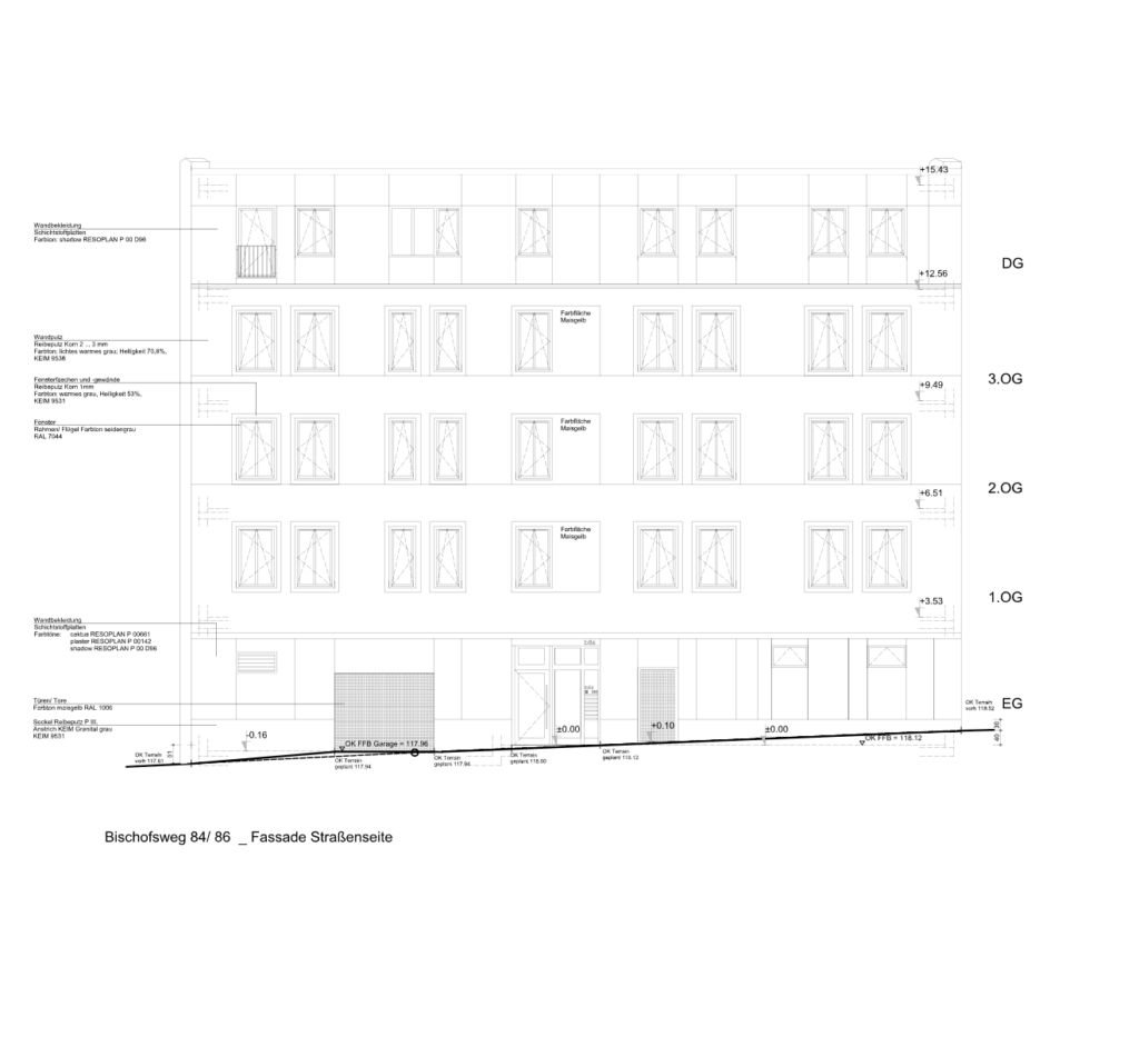
Passivhaus am Bischofsweg in Dresdner Neustadt

Komplettausschreibung, für DD Architekten Eichelmann

Bischofsweg, Dresden

08/2011 bis 09/2012

Komplettausschreibung aller Gewerke + Bauleitung Tiefbau/Rohbau bis OKG für Architekturbüro architekten dd Dipl.-Ing. Dietmar Eichelmann,
6 Familienhaus mit Tiefgarage

Aktuelle Referenzen